Plan
プラン

シンプルだからこそ自由な
空間のバリエーション。

Layout Drawing
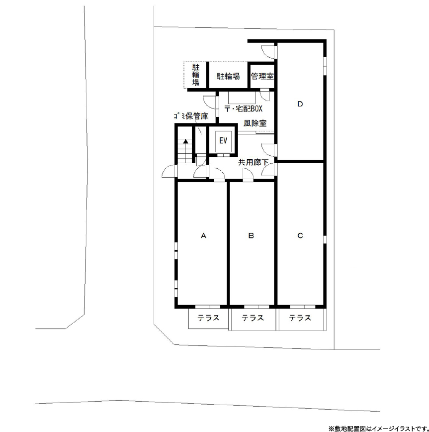
敷地配置図

Floor Drawing
各階平面図

ルームツアー動画
R o o m T o u r V i d e o

  • 共用部

  • 専有部(モデルルーム)

Room Plan
ルームプラン

Contact
お問い合わせ